반응형
서울 송파구 신천동 17번지 일원, 잠실생활권 중심에서
롯데건설의 프리미엄 브랜드 아파트 ‘잠실 르엘’이 공급됩니다.
잠실역 더블 역세권, 롯데월드·석촌호수·한강 조망권까지 갖춘 이 단지는
실거주와 투자를 동시에 고려한 수요자들에게 매우 매력적인 신규 분양 단지입니다.
👇 아래 버튼을 클릭해 확인해보세요
📌 사업개요
| 항목 | 내용 |
| 단지명 | 르엘 신천 (신천동 르엘) |
| 위치 | 서울특별시 송파구 신천동 17-6 번지 일원 |
| 규모 | 지하 3층 ~ 지상 35층, 13개동/ 총 1,865세대(일반 분양 219세대) |
| 전용면적 | 45㎡, 51㎡, 59㎡, 84㎡, 95㎡, 106㎡, 126㎡, 펜트하우스 일부 |
| 시공사 | 롯데건설 |
| 입주 예정일 | 2025년 12월 |
🚉 입지 분석
| 구분 | 내용 |
| 교통 | 지하철 2호선 잠실역·9호선 한성백제역 도보권 올림픽로·강변북로·동부간선도로 접근 우수 |
| 생활 | 롯데월드타워, 롯데백화점, 석촌호수, 잠실한강공원 도보 생활권 |
| 교육 | 잠신초, 잠신중, 잠실고 등 학군 우수 / 명문 학원가 인접 |
| 조망환경 | 일부 세대 한강·석촌호수 조망권 확보 예상 |

🌟 단지 특장점
- 잠실 중심 더블 역세권 입지 (2호선+9호선)
- 르엘 브랜드 적용, 프리미엄 고급 자재 및 커뮤니티 기대
- 석촌호수·한강 조망 확보 가능한 고층 설계
- 실사용 효율 높은 59~101㎡ 중소형 중심 구성
- 교육·상권·자연 삼박자 모두 누리는 생활권

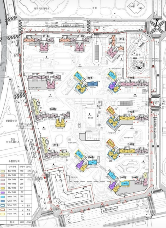
🏘️ 단지 배치도

📎 첨부파일 및 홈페이지
- 입주자 모집공고는 추후 업데이트 예정
롯데캐슬
www.lottecastle.co.kr
※ 본 글은 2025년 6월 기준 공개된 자료를 바탕으로 작성되었습니다. 실제 분양 내용과 상이할 수 있으므로, 청약 전 반드시 공식 입주자 모집공고를 확인하시기 바랍니다.
제공된 정보는 청약 권유나 투자 조언이 아니며, 최종 의사결정과 책임은 전적으로 독자 본인에게 있습니다.반응형
